
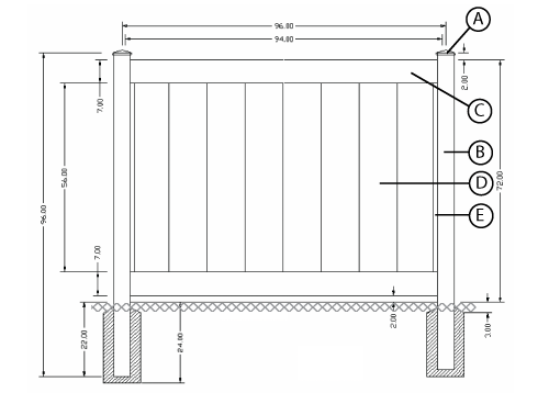
6' × 6' Gorilla Privacy
2" × 7"
Gorilla Pocket Rail
⅞" × 11.3"
T&G
5" × 5"
Post
| Key | QTY | Item Key | Description |
|---|---|---|---|
| A | 2 | C55PRYA | 5" × 5" Pyramid Cap |
| B | 2 | F10C | 5" × 5" × 96" Co-Extruded Utility Post |
| C | 2 | F3BF | 2" × 7" × 71 ½" Gorilla Pocket Rail |
| D | 6 | F61S | ⅞" × 11.3" × 59 ½" T&G |
| E | 2 | F83U | ⅞" × 56" Trim Channel |
Please refer to the appropriate guideline documents available on this app for proper installation.

6' × 8' Gorilla Privacy
2" × 7"
Gorilla Pocket Rail
⅞" × 6"
T&G
5" × 5"
Post
| Key | QTY | Item Key | Description |
|---|---|---|---|
| A | 2 | C55PRYA | 5" × 5" Pyramid Cap |
| B | 2 | F10C | 5" × 5" × 108" Co-Extruded Utility Post |
| C | 2 | F3BF | 2" × 7" × 94" Gorilla Pocket Rail |
| D | 15 | F54G | ⅞" × 6" × 59 ½" T&G |
| E | 2 | F83U | ⅞" × 56" Trim Channel |
| F | 1 | G3RFH148 | 2" × 93" Steel Rail Insert In Bottom Rail |
Please refer to the appropriate guideline documents available on this app for proper installation.

6' × 8' Gorilla Privacy
2" × 7"
Gorilla Pocket Rail
⅞" × 6"
Locking T&G
5" × 5"
Post
| Key | QTY | Item Key | Description |
|---|---|---|---|
| A | 2 | C55PRYA | 5" × 5" Pyramid Cap |
| B | 2 | F10C | 5" × 5" × 108" Co-Extruded Utility Post |
| C | 2 | F3BF | 2" × 7" × 94" Gorilla Pocket Rail |
| D | 15 | F54L | ⅞" × 6" × 59 ½" Locking T&G |
| E | 2 | F83U | ⅞" × 56" Trim Channel |
| F | 1 | G3RFH148 | 2" × 93" Steel Rail Insert In Bottom Rail |
Please refer to the appropriate guideline documents available on this app for proper installation.

6' × 8' Gorilla Privacy
2" × 7"
Gorilla Pocket Rail
⅞" × 11.3"
T&G
5" × 5"
Post
| Key | QTY | Item Key | Description |
|---|---|---|---|
| A | 2 | C55PRYA | 5" × 5" Pyramid Cap |
| B | 2 | F10C | 5" × 5" × 96" Co-Extruded Utility Post |
| C | 2 | F3BF | 2" × 7" × 94" Gorilla Pocket rail |
| D | 8 | F61S | ⅞" × 11.3" × 59" T&G |
| E | 2 | F83U | 56" Trim Channel |
Please refer to the appropriate guideline documents available on this app for proper installation.

6' × 8' Gorilla Privacy
2" × 7"
Gorilla Pocket Rail
⅞" × 11.3"
Locking T&G
5" × 5"
Post
| Key | QTY | Item Key | Description |
|---|---|---|---|
| A | 2 | C55PRYA | 5" × 5" Pyramid Cap |
| B | 2 | F10C | 5" × 5" × 96" Co-Extruded Utility Post |
| C | 2 | F3BF | 2" × 7" × 94" Gorilla Pocket rail |
| D | 8 | F61L | ⅞" × 11.3" × 59" Locking T&G |
| E | 2 | F83U | 56" Trim Channel |
Please refer to the appropriate guideline documents available on this app for proper installation.